Salta al contenuto principale
  • IT
  • EN

Navigazione principale

  • progetti
    • data center
    • workplace
    • healthcare
    • retail & interior
  • profilo
    • chi siamo
    • competenze
    • headquarter
  • media
    • news
    • press
  • contatti
  • job
home

Menu principale

  • progetti
    • data center
      • Business Factory 2
      • Business Factory 1
      • Data Center Area
      • Ermenegildo Zegna
      • BT Italia
      • GDF Suez
      • Fiat Group
      • IBM
      • Ids & Unitelm PD
      • Data Center Lepida - Parma
      • Novartis SI
      • Prada AR
      • Data Center Wholedata - Milano
      • Data Center Tiscali - Cagliari
      • ASL Imperiese
      • ATM DISASTER RECOVERY 1
      • Acqua di Falda I.NET
      • Comune di Milano
      • Data Center Asco TLC - Treviso
      • Data Center Ids&Unitelm - Roma
      • Data Center Municipale
      • FERRARI SA
      • MARS
      • Masterplan Data Center
      • Open Hub Med
      • Ospedale di Parma
      • Recordati
      • Regione Campania
      • Selecta S.p.A.
    • workplace
    • healthcare
    • retail & interior
  • profilo
    • chi siamo
    • competenze
    • headquarter
  • media
    • news
    • press
  • contatti
  • job
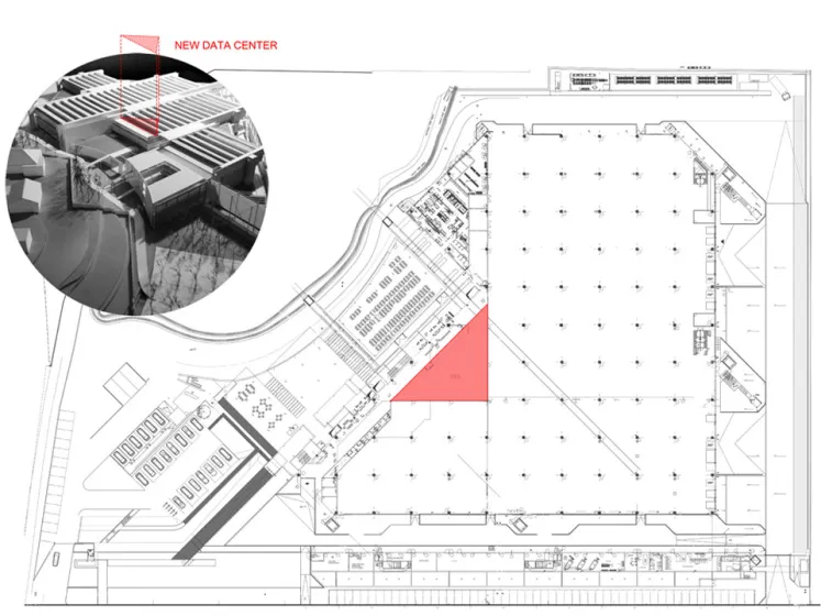
Data Center Prada - Arezzo
Data Center Prada - Arezzo
Data Center Prada - Arezzo
Data Center Prada - Arezzo
Data Center Prada - Arezzo
Data Center Prada - Arezzo
Data Center Prada - Arezzo
Data Center Prada - Arezzo
Data Center Prada - Arezzo
Data Center Prada - Arezzo
Data Center Prada - Arezzo
Data Center Prada - Arezzo
back to: data center

Prada

Arezzo

share

  • Facebook
  • Linkedin
  • Twitter

logo-square-50.png

In-Site s.r.l.
Via Caccianino, 22 - Milano   p.iva: 05181900969

Follow

Footer menu

  • contatti
  • dove siamo
  • cookies
  • privacy