Salta al contenuto principale
Toggle navigation
Menu
IT
EN
Navigazione principale
progetti
data center
workplace
healthcare
retail & interior
profilo
chi siamo
competenze
headquarter
media
news
press
archivio
contatti
job
Close navigation
Menu principale
progetti
data center
Business Factory 2
Business Factory 1
Data Center Area
Ermenegildo Zegna
BT Italia
GDF Suez
Fiat Group
IBM
Ids & Unitelm PD
Data Center Lepida - Parma
Novartis SI
Prada AR
Data Center Wholedata - Milano
Data Center Tiscali - Cagliari
ASL Imperiese
ATM DISASTER RECOVERY 1
Acqua di Falda I.NET
Comune di Milano
Data Center Asco TLC - Treviso
Data Center Ids&Unitelm - Roma
Data Center Municipale
FERRARI SA
MARS
Masterplan Data Center
Open Hub Med
Ospedale di Parma
Recordati
Regione Campania
Selecta S.p.A.
workplace
healthcare
retail & interior
profilo
chi siamo
competenze
headquarter
media
news
press
archivio
contatti
job
Previous
Next
back to:
data center
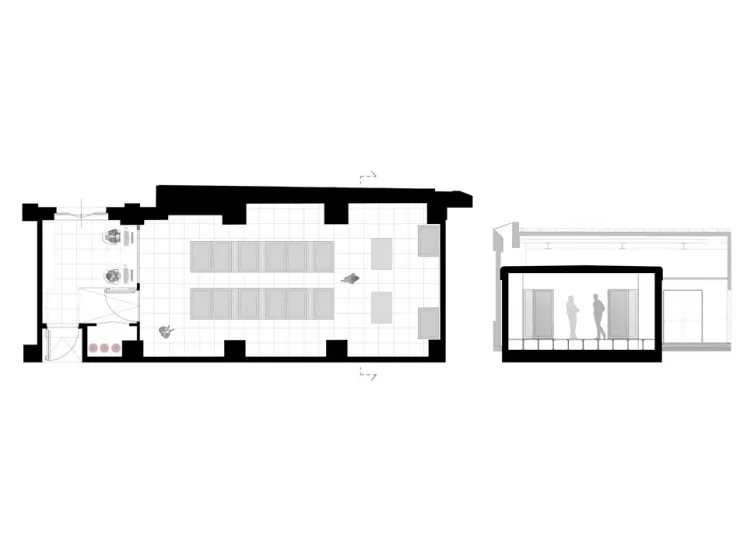
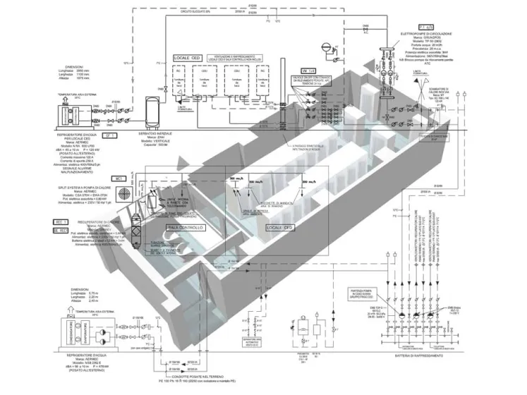
Ermenegildo Zegna
Stabio
share