Salta al contenuto principale
Toggle navigation
Menu
IT
EN
Navigazione principale
progetti
data center
workplace
healthcare
retail & interior
profilo
chi siamo
competenze
headquarter
media
news
press
archivio
contatti
job
Close navigation
Menu principale
progetti
data center
workplace
Disaster Recovery Equinix - Milano
Headquarter C3 Group
Headquarter I.net
Security Operations Center BT Italia
Abitare Segesta
Showcase BT Italia
Studio Legale
Alexander Bank BT Italia
Disaster Recovery BT Italia - Milano
Disaster Recovery BT Italia
Disaster Recovery IBM
Headquarter Interoute
Network Operations Center
Schneider Electric
Showcase BT Italia
Sulzer S.p.A.
healthcare
retail & interior
profilo
chi siamo
competenze
headquarter
media
news
press
archivio
contatti
job
Previous
Next
back to:
workplace
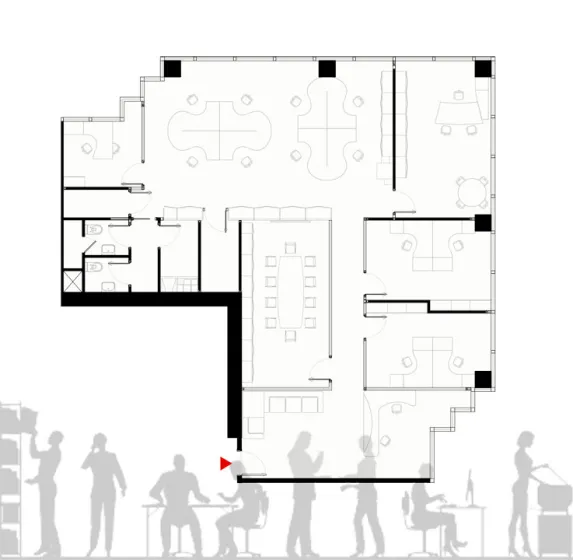
Sulzer S.p.A.
Bahrain
share