back to: workplace

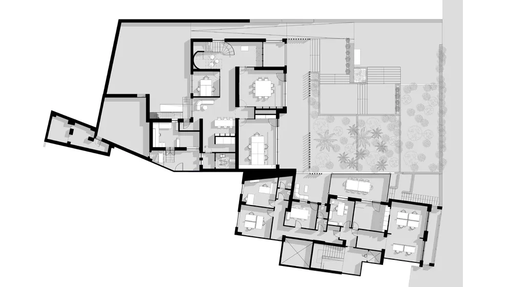
Uffici IDS & Unitelm

Messina

L'ufficio non più solo come luogo di lavoro, ma anche contesto di vita e relazioni.

Un progetto all'interno di un contesto storico che tiene in considerazione la transizione del mondo del lavoro e l'evoluzione digitale degli spazi con la creazione di aree multifunzionali, flessibili e modulari e con la valorizzazione degli ambienti esterni per un maggior benessere: tecnologia e natura dialogano armonicamente in ottica di human centerd design